Кратко описание
Кухня БФ-Бяло мат-09 съчетава модерен стил и класическа елегантност в изискана комбинация от бяло матово МДФ лице и плот „Камък антрацит“ . Медните акценти и изисканото осветление подчертават луксозното излъчване и вниманието към детайла . Просторният остров и функционалните модули осигуряват удобство, ергономия и възможност за вграждане на уреди . Идеалният избор за тези, които търсят съвършен баланс между стил и практичност .
Предимства:
- Модерен дизайн в стилна цветова комбинация
- Плавно затваряне на вратите
- Възможност за вграждане на мивка и уреди
- Функционални модули с оптимално разпределение
- Изработена от висококачествен МДФ
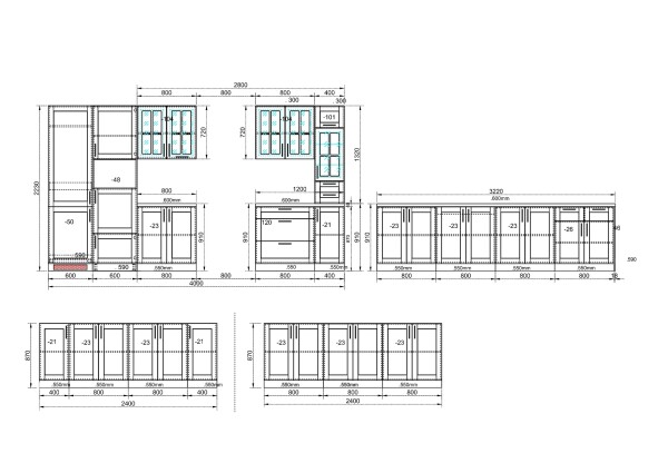
Долен ред:
- Колонен модул за вграждане на хладилник с височина 178см. БФ-Бяло мат-09-50 - 60/59/223см
- Колонен модул с четири врати с възможност за вграждане на фурна и микровълнова с височина 38см БФ-Бяло мат-09-48 - 60/59/223 см
- Четири долни модула с две врати плот, възможност за вграждане на мивка БФ-Бяло мат-09-23 - 80/55/87 см
- Три долни модула с по три чекмеджета и плавно зтваряне БФ-Бяло мат-09-120 - 80/55/87 см
- Долен модул с врата и плот БФ-Бяло мат-09-21 - 40/55/87 см
- Долен модул с два чекмеджета и две врати с плот БФ-Бяло мат -09-26 - 80/55/87 см
- Краен панел Ф-Бяло мат-09-46 - 1,8/59/87 см
Размери долен ред:
- 400/60/223 см.
- 320/60/91см.
(дълбочина на шкафовете под плота – 55 см)
Остров:
- Два долни модула с врата и плот БФ-Бяло мат-09-21 - 40/55/87 см
- Пет долен модул с две врати плот, възможност за вграждане на мивка БФ-Бяло мат-09-23 - 80/55/87 см
Размери на острова:
(дълбочина на шкафовете под плота – 55 см)
Термоплот:
- 80/60/3,8 см.
- 120/60/3,8 см.
- 322/60/3,8 см.
Горен ред:
- Два горни модула с две витринни врати и плот БФ-Бяло мат-09-104 - 80/30/72 см
- Долен модул с повдигаща врата,витрина и 2 чекмеджета БФ-Бяло мат-09-101 - 40/30/132см.
Размери горен ред:
Технически данни:
- Корпус: Бяло гладко ПДЧ 16 мм, кант 0.45 мм
- Лице: МДФ Бяло мат 18мм
- Термоплот : Камък антрацит
- Дръжки: № 285 - 160 мм
- Монтаж: към стената
Важно:
В цената не са включени : термогръб, водобран, тапи и ъгли, присъединителна лайсна, декоративни елементи, мивка, батерия и електроуреди.
| Спецификация |
Стойност |
| Материал |
ПДЧ, МДФ |
| Цвят |
Бяло мат |
| Размер(см) |
400 |