Модулна кухня Сити 9083 в цветове Сатен и Бяло гладко – модерна, практична и стилна. Изработена от ПДЧ 16 мм с плавно затваряне на вратите и удобен кухненски остров за повече пространство. Перфектен избор за съвременни кухни с елегантна визия и функционален дизайн.
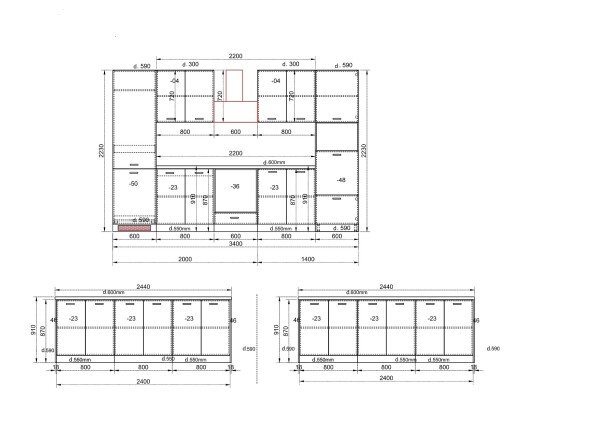
Размери долен ред: 340/60/223 см
(дълбочина на шкафовете под плот – 55 см)
Горен ред:
Два шкафа с по две врати и плот 80см - БС - 4
Размери горен ред: 180/30/72 см
Островни модули:
Размери остров: 244/120/91 см
Технически данни:
Важно:
В цената не са включени : термогръб, водобран, тапи и ъгли, декоративни елементи, мивка, батерия и електроуреди.
Кухня Сити 9083 – съвършено съчетание между стил, комфорт и практичност, което ще превърне всяко готвене в истинско удоволствие!
| Спецификация | Стойност |
|---|---|
| Материал | ПДЧ, МДФ |
| Цвят | |
| Размер(см) | 340 |