Валута:

Кухня Сити 9126

Модел:
S1354
Наличност:
Предварителна заявка
Доставка до:
10-15
2093.74€
4094.99лв.
Количество:

Кратко описание

Кухнята Сити 9126 впечатлява с модерен дизайн и стилна матова повърхност в актуалния оливен цвят, създаваща уютна и елегантна атмосфера. Функционалните модули позволяват пълно вграждане на уреди, удобно разпределение и максимално използване на пространството. Островът допринася за повече работна площ и практичност, а системата за плавно затваряне гарантира комфорт и дълготрайност. Изработена от висококачествен МДФ, кухнята комбинира стил, устойчивост и висока функционалност за съвременния дом.

Предимства:

  • Модерен дизайн в стилна цветова комбинация
  • Плавно затваряне на вратите
  • Възможност за вграждане на мивка и уреди
  • Функционални модули с оптимално разпределение
  • Изработена от висококачествен МДФ

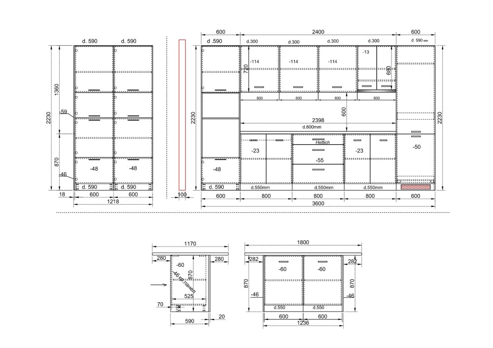
Долен ред:

  • Краен панел Ф-Олив мат-11-46 - 1,8/59/87см.
  • Краен панел Ф-Олив мат-11-59 - 1,8/59/136см.
  • Три модула с четири врати и възможност за вграждане на фурна и мирковълнова с височина 38см АРФ-Олив мат-11-48 - 60/59/223см.
  • Два долни модула с две врати и връзможност за вграждане на мивка АРФ-Олив мат-11-23 - 80/55/87см.
  • Долен модул с три чекмеджета и система InnoTech Atira с плавно затварян АРФ-Олив мат-11-55 - 80/55/87см.
  • Колонен модул с две врати с възможнст за вграждане на хладилник с височина 178см АРФ-Олив мат-11-50 - 60/59/223см

Размери долен ред:

  • 122/59/223см.
  • 360/59/223см.

Дълбочина на шкафове под плот 55см.

Остров:

  • Два краин панела Ф-Олив мат-11-46 - 1,8/59/87см.
  • Два долни модула АРФ-Олив мат-11-60 - 60/55/87см.

Размери остров:

  • 124/59/87см.

Дълбочина на шкафове под плот 55см.

Горен ред:

  • Три горни модула с една врата и рафт АРФ-Олив мат-11-114 - 60/30/72см.
  • Горен модул за аспиратор с височина на вграждане 13,5см АРФ-Олив мат-11-13 - 60/30/68см.

Размери горен ред:

  • 240/30/72см

Технически данни:

  • Корпус: Сонома Арвен 629 ПДЧ 16 мм, кант 0.45 мм 
  • Лице: МДФ Олив мат 18мм 
  • Дръжки: №239-96мм
  • Монтаж: към стената

Важно:

В цената не са включени : термогръб, водобран, тапи и ъгли, присъединителна лайсна, декоративни елементи, мивка, батерия и електроуреди.

Спецификация Стойност
Материал ПДЧ, МДФ
Цвят Олив мат
Размер(см) 360

Подобни продукти

Нашият онлайн магазин използва така наречените „Бисквитки“. Научете повече за нашата политика за поверителност и нашата политика за Бисквитки.