Кухня Сити 9164 съчетава съвременен гланцов стил и естествено дървесно излъчване, придавайки на интериора усещане за уют и елегантност. Модулната ѝ структура предлага възможност за вграждане на уреди и мивка, плавно затваряне на вратите и оптимално функционално разпределение. Изработена от висококачествен МДФ с корпус от ПДЧ Мока, кухнята впечатлява с термоплот Небула и елегантни дръжки Push Open, осигуряващи модерна и изчистена визия. Перфектен избор за стилен и практичен дом.
Предимства:
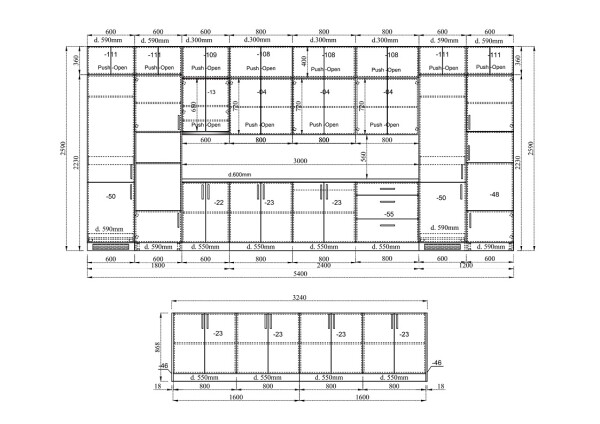
Долен ред:
Размери долен ред:
(дълбочина на шкафовете под плот – 55 см)
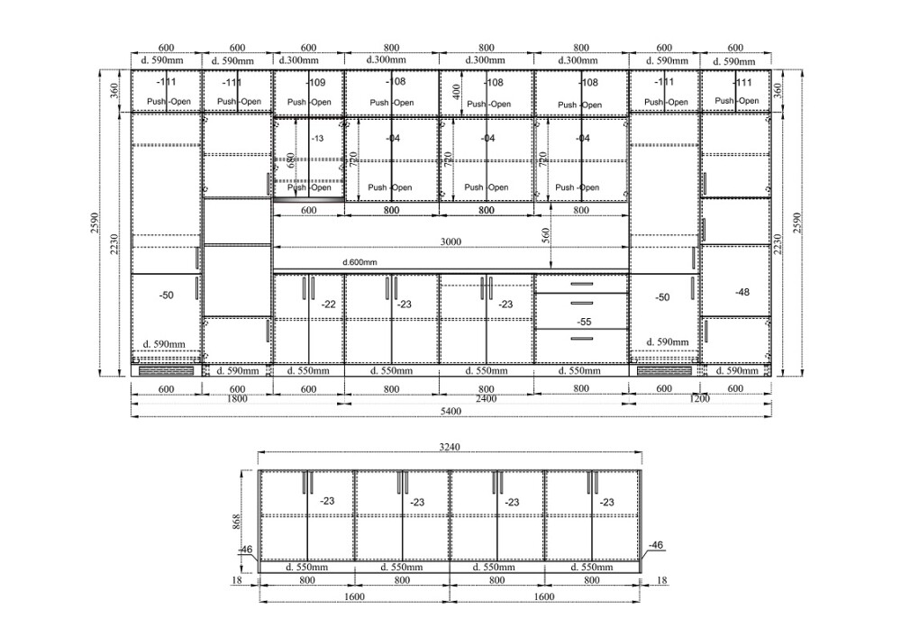
Остров:
Размери остров:
(дълбочина на шкафовете под плот – 55 см)
Термоплот:
Горен ред:
Размери горен ред:
Технически данни:
PVC цокъл с алуминиево покритие - 4 комплекта
Обща габаритна височина 259см.
Важно:
В цената не са включени : термогръб, водобран, тапи и ъгли, присъединителна лайсна, декоративни елементи, мивка, батерия и електроуреди.
| Спецификация | Стойност |
|---|---|
| Материал | ПДЧ, МДФ |
| Цвят | Криймм гланц, Дъб натурал |
| Размер(см) | 540 |